363050.com

低调奢华西湖娱乐城- 西湖娱乐城官方网站- APP的酒吧会所打造杭州最高端的时尚玩咖聚集地!

  西湖娱乐城,西湖娱乐场,西湖娱乐场注册,西湖娱乐城注册,西湖娱乐城官方网站,西湖娱乐城APP,西湖娱乐城网址,西湖娱乐城链接,西湖娱乐城登录,西湖娱乐城平台,西湖娱乐城网址,西湖娱乐城最新,寻宝奇航杭州V+Lounge是著名品牌V+继北京、成都后国内的第三家分店,由华夫设计(Studio Waffles)和零壹城市建筑事务所(LYCS Architecture)共同完成其室内空间设计。项目地处西湖旁最为繁华的核心商业区域——东坡路平海路口的西南角,3层以上便可远眺湖景,离苹果亚洲最大的旗舰店不足100米。项目独特的地理位置传递出关于湖水的灵感,设计团队通过对曲线、镜面与光线的运用,将水下、水面、水上的不同感官体验融入进室内空间。

  一层大堂利用层高较高的优势,运用较为整体的墙面设计,将若隐若现的几何分割光线穿插于其中,空间开敞、大气。细腻考究的材质暗示了整个项目低调、奢华的空间属性。

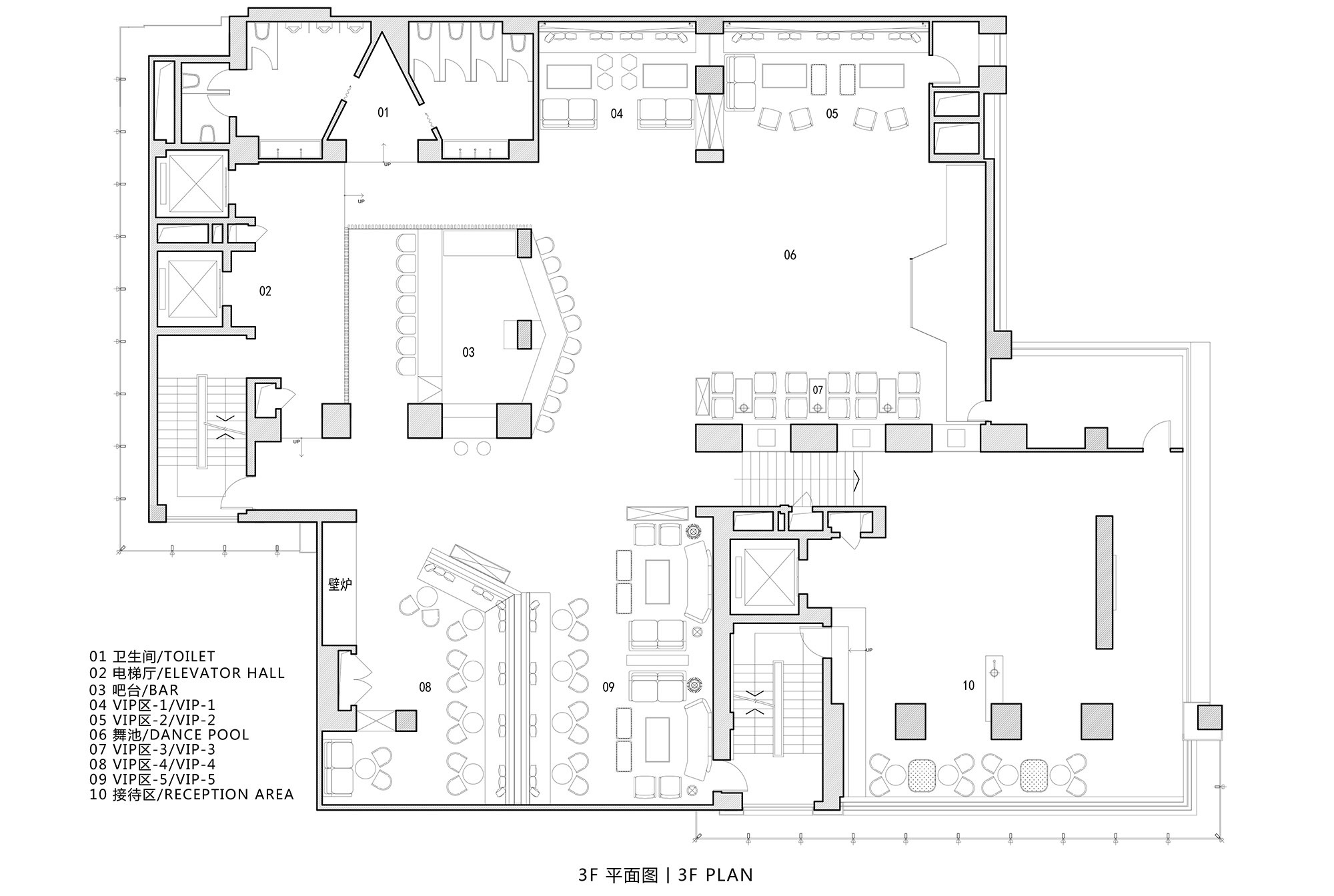
  三层是综合性酒吧,设置了多种类型的吧台,以满足不同顾客的需求。休息区正中间耸立着黑白大理石拼接的巨大V+ logo,Logo图案在不同的视角下面会产生不同的变化。大理石墙面经过点光源的反射,将层高的优势通过戏剧化的材质表现方式进行解构和重组。

  酒吧着重营造水下空间氛围。设计师使用透明的水纹玻璃作为墙面,顶部设置了射灯和漫反射灯光,利用空间的纵深优势,打造了一个虚实相交的水下吧,在变换的灯光下,柔和的呈现四季交替的景象。

  设计师在KTV部分的设计上突破了传统模式,创新性的将西湖之景引入室内。五层空间融入了湖底漫游的概念,包间与走廊的墙面采用了镜面加流线型的灰色墙体来表现深入湖底的水下世界。走廊界面极尽简洁,光藏匿于镜面玻璃后和曲线墙体竖向切片的缝隙中,西湖的远景在这片暗色的涟漪中格外鲜亮。流线墙体过渡自然,将包间与走廊有机的结合在一起。包间内设置独特的飘板沙发,各式经典沙发置于薄板之上,漂浮在大包间中,降低了传统沙发厚重的感觉,在视觉上更加的通透。

  六层空间引入了无限西湖的概念,空间内沿用了白色的流线型墙体,并与镜面材料无缝连接,纯净而明快。整个空间简约而动感,宛如西湖水面一叶扁舟划过后留下的优美曲线。夹在水波之中的廊道运用高反射材料,将西湖美景延伸进室内空间,与室内天花映射出的美景形成鲜明的反差。廊道周围散射灯的带型可变色光源,呈现波光的柔美感觉,使人宛如身处湖底。

  六层的包间对单一的空间进行了分割,以立柱或沙发等结构将一个全封闭空间转化成两个半封闭空间。包间内地面为精密抛光处理的黑色反射材质。一幅水下摄影为主题的壁画赋予墙面 “水”的波澜之感,电视背景墙以吸声性能极好的羊毛毡贴装,在全镜面的空间中以深沉的颜色增加墙体质感。

  为了将西湖的景观价值最大化,V+包间更是采取了一种内外呼应的设计方式。室内使用了大量的落地玻璃,并且部分区域内的顶面和地面加入了光滑的镜面,通过反射能将西湖的美景引入室内,使用户在自然景观的环抱下享受歌唱的乐趣。

  七层与八层是专属于V+ Lounge VIP的独享空间,设计语言与其他空间相统一,但却更为尊贵与奢华。沿西湖面的两层空间部分被上下打通,形成一个中空的空间,既交相呼应又独立分隔,并将水的语汇元素用现代的方式展示在空间中。

  为体现湖面轻盈的光影和富有微妙细腻的动感,七层整体空间采用了厚重精致的材料,,从而体现出水面的斑驳之感。吧台区域的设计以玻璃和金属材质为主,结合穿插于玻璃中间的灯光,营造出一个发光的宝石的效果。使得整体吧台成为一个视觉焦点。在散客区,椭圆形片状物包裹柱体,可以在合适的高度形成桌面,带来独特的餐饮体验。沿窗的区域设置了可灵活组合的桌椅,中性的暗色调空间更加凸显出窗外抢眼的西湖夜景。

  八层整体空间延续七层的材质对比的做法,但在空间造型上使用具有序列感且对称的线条元素,以区别于七层的自由排列的几何线条。在VIP室内,天花由银白色的金属插片与质感较为厚重的混凝土组成,强调了材料的厚重与轻盈、多元与整体。地面部分选用暗色调的石材结合金属线条拼接。厚重的暗色调材质更能够凸显出银白色金属插片的轻盈感。

  名设网()打造专业室内空间设计服务平台,先设计后付费,不满意不收费,专业设计师审核,质量有保证。为客户提供优质的空间设计方案,将创意、灵感、美学等转化为商业价值和社会价值。返回搜狐,查看更多

Copyright © 2012-2025 西湖娱乐城公司 版权所有 非商用版本